Mặt bằng Metropole Thủ Thiêm - Phân tích chi tiết từng layout 1-4PN & Shophouse
Mặt bằng Metropole Thủ Thiêm được đánh giá cao trên thị trường nhờ thiết kế tối ưu tầm nhìn, công năng và mật độ căn hộ thấp - yếu tố hiếm thấy trong nhiều dự án cao cấp tại Thủ Thiêm. Layout căn hộ được bố trí vuông vức, ban công rộng, cửa kính lớn từ sàn đến trần giúp hầu hết căn hộ đón ánh sáng tự nhiên và sở hữu view sông Sài Gòn hoặc trung tâm Quận 1. Bên cạnh đó, dự án còn đa dạng loại hình từ 1-4 phòng ngủ, duplex đến penthouse, phù hợp nhiều nhu cầu ở thực và đầu tư, đồng thời tạo nên lợi thế cạnh tranh rõ rệt so với các dự án cùng phân khúc trong khu đô thị Thủ Thiêm.
Tổng quan dự án Metropole Thủ Thiêm
The Metropole Thủ Thiêm là tổ hợp căn hộ hạng sang tọa lạc tại lõi trung tâm Khu đô thị Thủ Thiêm, Tp.HCM. Dự án do SonKim Land phát triển - thương hiệu nổi tiếng với dòng sản phẩm luxury chuẩn quốc tế.

Quy mô: ~7,6 ha
Gồm 4 phân khu:
- The Galleria Residence
- The Crest Residence
- The Opera Residence
- The OpusK Residence
Điểm nổi bật của dự án không chỉ đến từ vị trí “đối diện Quận 1 qua cầu Ba Son” mà còn nằm ở thiết kế mặt bằng thông minh, tối ưu ánh sáng – tầm nhìn – công năng sử dụng.
Mặt bằng Metropole Thủ Thiêm tổng thể
Quy hoạch tổng thể mặt bằng Metropole Thủ Thiêm
Mặt bằng Metropole Thủ Thiêm tổng thể được quy hoạch theo triết lý:
- Mật độ xây dựng thấp
- Tối đa hóa view sông Sài Gòn
- Tách biệt không gian sống và thương mại
- Tạo trục cảnh quan hướng trung tâm Quận 1
Các phân khu được bố trí tối ưu hướng view:
- Tránh che chắn tầm nhìn
- Tăng tỷ lệ căn góc
- Đón gió tự nhiên từ sông

Hướng view chiến lược đắt giá
Tùy phân khu, căn hộ có thể sở hữu:
- View sông Sài Gòn trực diện
- View skyline Quận 1
- View quảng trường trung tâm
- View nội khu hồ bơi
Đây là yếu tố giúp mặt bằng Metropole Thủ Thiêm giữ giá tốt hơn nhiều dự án cùng phân khúc.

Phân tích mặt bằng The Galleria Residences - The Metropole Thủ Thiêm
The Galleria Residences là phân khu căn hộ đầu tiên được ra mắt trong dự án The Metropole Thủ Thiêm, định vị dòng căn hộ cao cấp phù hợp cả nhu cầu ở thực và đầu tư cho thuê, đặc biệt với nhóm chuyên gia làm việc tại khu trung tâm.

Phân khu gồm 3 tòa tháp cao 12 tầng với 456 căn hộ, bố trí từ tầng 3 đến tầng 12. Khối đế dự án có 64 căn shophouse thương mại, phục vụ nhu cầu mua sắm và dịch vụ cho cư dân.






Ngoài ra, dự án còn có các căn Penthouse, sở hữu không gian rộng và tầm nhìn hướng sông Sài Gòn và trung tâm Quận 1, mang lại trải nghiệm sống cao cấp.
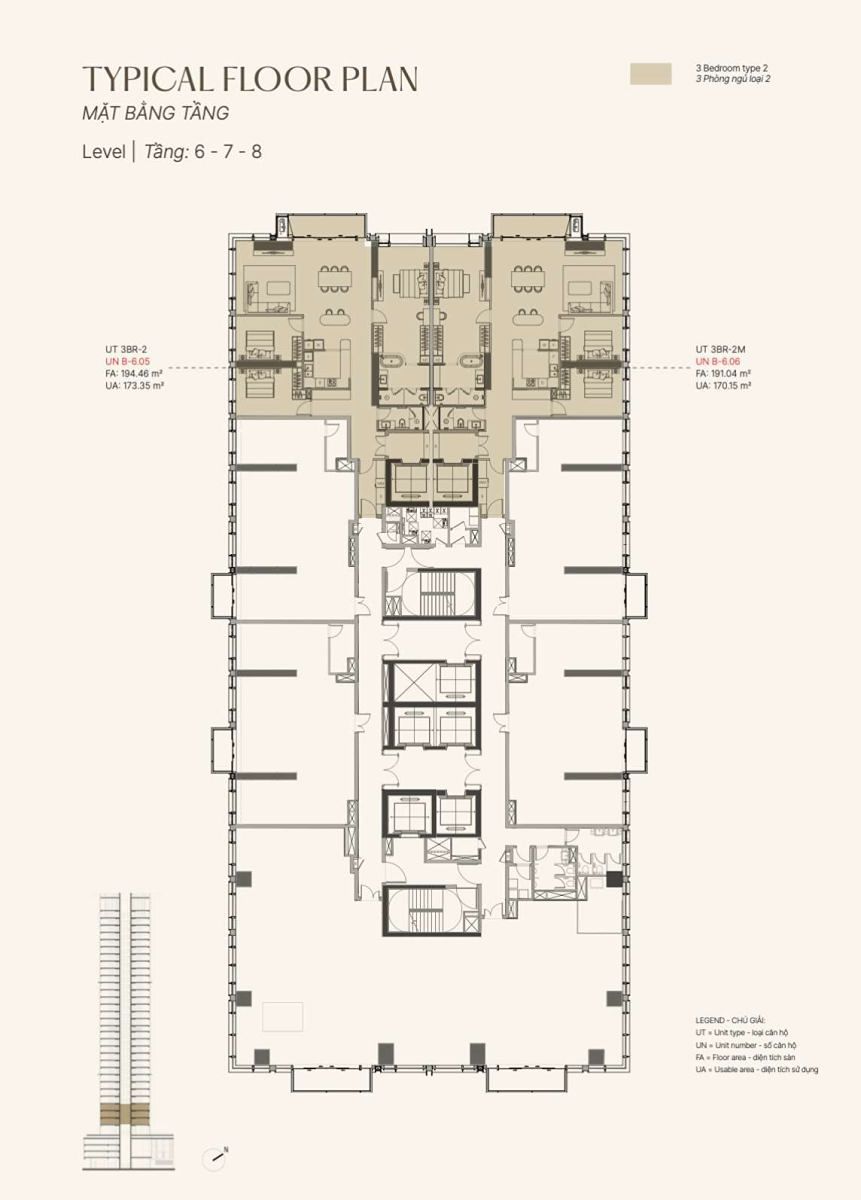
Phân tích mặt bằng The Crest Residences - The Metropole Thủ Thiêm
The Crest Residence là phân khu giai đoạn 2 của dự án The Metropole Thủ Thiêm, được phát triển theo định hướng căn hộ cao cấp với không gian sống xanh và hệ tiện ích nội khu hoàn chỉnh.

Phân khu có 3 tòa tháp cao 24-30 tầng với 3 tầng hầm, cung cấp khoảng 250 căn hộ. Trong giai đoạn này, 1 tòa tháp căn hộ và 2 tòa tháp văn phòng được xây dựng song song, tạo nên một tổ hợp hiện đại ngay trung tâm khu đô thị Thủ Thiêm.
Cơ cấu căn hộ The Crest Residence
Các căn hộ được bố trí từ tầng 6 đến tầng 24, với khoảng 12-13 căn trên mỗi tầng, bao gồm:
- Studio: khoảng 47,44 m²
- 1 phòng ngủ: khoảng 79,19 m²
- 2 phòng ngủ: khoảng 82 - 121 m²
- 3 phòng ngủ: khoảng 129 - 151 m²
Ngoài ra, dự án còn có các căn penthouse thông tầng với diện tích lớn và tầm nhìn rộng.




Điểm nổi bật trong thiết kế:
So với phân khu The Galleria Residences, mặt bằng căn hộ tại The Crest Residence được nâng cấp rõ rệt về không gian và trải nghiệm sống. Các căn hộ tại đây có diện tích rộng hơn, phù hợp với nhu cầu an cư lâu dài của gia đình. Thiết kế ban công lớn giúp căn hộ đón gió và ánh sáng tự nhiên tốt hơn, đồng thời mở rộng tầm nhìn ra cảnh quan xung quanh.
Bên cạnh đó, dự án có tỷ lệ căn góc cao, giúp nhiều căn hộ sở hữu góc nhìn thoáng, tăng sự riêng tư và giá trị sử dụng. Ngoài các căn hộ tiêu chuẩn, The Crest Residence còn có penthouse thông tầng, mang đến không gian sống rộng rãi và đẳng cấp hơn cho nhóm khách hàng cao cấp.
Phân tích thiết kế
Layout căn hộ tại The Crest được tối ưu theo hướng nâng cao trải nghiệm sống:
- Phòng ngủ master thiết kế riêng tư, tách biệt khu sinh hoạt chung
- Khu bếp bố trí kín hoặc bán kín, hạn chế mùi khi nấu ăn
- Hành lang căn hộ ngắn, giúp tăng diện tích sử dụng thực tế bên trong
Nhờ thiết kế này, các căn hộ tại The Crest mang lại không gian sống rộng rãi, riêng tư và tiện nghi hơn, phù hợp với khách hàng cao cấp hoặc các gia đình có nhu cầu an cư lâu dài tại khu đô thị Thủ Thiêm.
Phân tích mặt bằng The Opera Residences - The Metropole Thủ Thiêm
The Opera Residence là một trong những phân khu nổi bật của The Metropole Thủ Thiêm, gồm 2 tòa tháp Scala và Massimo cao 24 tầng, cung cấp tổng cộng 646 căn hộ với nhiều loại hình từ 1 đến 4 phòng ngủ. Dự án còn tích hợp khu căn hộ, văn phòng và trung tâm thương mại, tạo nên một tổ hợp sống - làm việc - giải trí hiện đại ngay trung tâm Thủ Thiêm. Nhờ vị trí nằm gần quảng trường trung tâm và khu Nhà hát, Opera được đánh giá là phân khu sở hữu vị trí đắt giá bậc nhất toàn dự án.

Dãy shophouse với mặt tiền rộng, lý tưởng cho kinh doanh và khai thác cho thuê. Ngoài ra, một số căn hộ diện tích lớn được thiết kế riêng biệt, linh hoạt sử dụng để ở hoặc làm văn phòng.
Khối đế tầng 1-4:




Tầng 5 được thiết kế là khu tiện ích trung tâm kết hợp các căn hộ loft thông tầng với chiều cao trần 5.6m, tạo nên không gian sống độc đáo và giàu tính nghệ thuật. Cư dân có thể tận hưởng hệ tiện ích nội khu như sảnh lễ tân sang trọng, phòng sinh hoạt cộng đồng, phòng gym cao cấp, hồ bơi tràn view sông cùng khu vườn thư giãn và lounge ngoài trời.

Tầng 6 đến tầng 22 là khu căn hộ tiêu chuẩn gồm các loại hình từ 1 đến 4 phòng ngủ. Mỗi căn hộ được thiết kế không gian mở, ban công rộng và hệ cửa kính kịch trần, mang lại sự thông thoáng và tối ưu ánh sáng tự nhiên. Tùy vị trí, căn hộ sở hữu tầm nhìn hướng sông Sài Gòn hoặc toàn cảnh trung tâm Quận 1 và Landmark 81.

Tầng 23 và 23 Loft được thiết kế với các căn hộ loft thông tầng có chiều cao trần 5.6m, tạo nên không gian sống hiện đại và giàu cảm hứng. Với diện tích rộng cùng cách bố trí thông minh, các căn hộ này phù hợp cho những gia chủ yêu thích sự khác biệt và phong cách sống cá tính.




Tầng 23A và 23A Loft là khu penthouse với diện tích rộng, sở hữu hồ bơi và sân vườn riêng, mang đến trải nghiệm sống đẳng cấp. Các căn penthouse có tầm nhìn 360 độ bao quát sông Sài Gòn và trung tâm thành phố, tạo nên không gian sống sang trọng, riêng tư và khác biệt.


Về thiết kế, mặt bằng căn hộ tại The Opera Residences được tối ưu để tận dụng tối đa tầm nhìn ra sông Sài Gòn, với tỷ lệ căn góc cao giúp nhiều căn hộ có góc nhìn rộng và thông thoáng. Điểm nhấn nổi bật là phòng khách sử dụng hệ kính full-height, mở rộng không gian và tăng trải nghiệm ánh sáng tự nhiên. Nhờ những lợi thế về vị trí và thiết kế, Opera được đánh giá là phân khu có tiềm năng tăng giá cao, khả năng cho thuê tốt nhờ tầm nhìn biểu tượng, đồng thời mang giá trị sưu tầm cao đối với các nhà đầu tư bất động sản cao cấp.
Mặt bằng chi tiết từng loại căn hộ tại The Opera Residences:
Chi Tiết Layout Căn Hộ Tháp Massimo (Tháp A)


















Chi Tiết Layout Căn Hộ Tháp Scala (Tháp B)


















Layout Penthouse The Opera Residence








Phân tích mặt bằng The OpusK Residences - The Metropole Thủ Thiêm
The OpusK Residence là phân khu cuối cùng và cũng là dòng ultra luxury của dự án The Metropole Thủ Thiêm. Dự án gồm 2 tòa tháp cao khoảng 28–36 tầng, cung cấp số lượng căn hộ giới hạn khoảng 190 căn, được xem như “bộ sưu tập” căn hộ hàng hiệu dành cho giới thượng lưu.

Về thiết kế mặt bằng, The OpusK được phát triển theo tiêu chuẩn branded residence, tập trung vào không gian sống rộng và tính riêng tư cao. Các căn hộ có diện tích lớn hơn so với các phân khu trước, trần cao và nhiều căn được bố trí thang máy riêng, sảnh riêng biệt, mang lại trải nghiệm sống tương tự các khách sạn 5 sao. Layout căn hộ theo xu hướng không gian mở, với phòng khách rất rộng, kết nối trực tiếp ban công và tầm nhìn panorama sông Sài Gòn - skyline Quận 1. Khu phòng ngủ master được thiết kế chuẩn khách sạn cao cấp, chú trọng sự riêng tư và tiện nghi cho gia chủ.
Mặt bằng tầng The OpusK:





Mặt bằng chi tiết căn hộ The OpusK:





Nhờ số lượng giới hạn, vị trí trung tâm Thủ Thiêm và tiêu chuẩn hoàn thiện cao cấp, The OpusK được xem là phân khu mang giá trị sưu tầm và giữ tài sản dài hạn trong toàn bộ dự án. Sản phẩm này chủ yếu hướng đến giới siêu giàu, doanh nhân hoặc nhà đầu tư muốn sở hữu bất động sản hạng sang mang tính biểu tượng tại trung tâm tài chính mới của TP.HCM.
Có nên mua The Metropole Thủ Thiêm thời điểm này không?
Lợi thế hạ tầng
Một trong những lợi thế lớn nhất của Metropole Thủ Thiêm là khả năng di chuyển nhanh sang Quận 1 thông qua Cầu Ba Son. Từ dự án chỉ mất khoảng 3–5 phút để tới khu Ba Son, phố đi bộ Nguyễn Huệ hoặc trung tâm tài chính của thành phố. Điều này tạo ra lợi thế lớn so với nhiều dự án tại Thủ Thiêm hoặc Thủ Đức vốn phải di chuyển xa hơn để vào trung tâm.

Khu đô thị Thủ Thiêm được định hướng trở thành trung tâm tài chính – thương mại mới của thành phố, nơi tập trung nhiều công trình trọng điểm như:
- Quảng trường trung tâm Thủ Thiêm
- Trung tâm hội nghị – triển lãm
- Khu phức hợp tài chính quốc tế
Khi các công trình này hoàn thiện, khu vực Thủ Thiêm được kỳ vọng sẽ trở thành “Downtown thứ hai” của TP.HCM, tương tự mô hình Marina Bay tại Singapore.
Giá trị đầu tư
Bất động sản ven sông tại khu vực trung tâm ngày càng khan hiếm. Trong khi đó, mặt bằng The Metropole Thủ Thiêm sở hữu vị trí ngay bờ sông Sài Gòn và đối diện trực tiếp Quận 1, tạo nên giá trị đặc biệt mà rất ít dự án có được.
Các căn hộ có view sông hoặc skyline trung tâm thường có:
- Giá trị tăng trưởng tốt hơn
- Khả năng cho thuê cao
- Tính thanh khoản tốt

Dự án được phát triển bởi SonKim Land – một trong những nhà phát triển bất động sản cao cấp tại Việt Nam.
Khác với nhiều khu đô thị có hàng nghìn căn hộ được mở bán cùng lúc, The Metropole Thủ Thiêm được phát triển theo từng giai đoạn với số lượng căn không quá lớn.
Điều này giúp:
- Hạn chế áp lực nguồn cung
- Giữ giá trị sản phẩm ổn định
- Tăng tính khan hiếm của các căn hộ view đẹp
Nhu cầu ở thực
Đối với khách hàng mua để ở, The Metropole Thủ Thiêm được đánh giá cao nhờ môi trường sống chuẩn căn hộ hạng sang ngay trung tâm Thủ Thiêm. Dự án sở hữu hệ thống tiện ích nội khu đa dạng như hồ bơi chuẩn resort, công viên ven sông, khu thể thao - gym, lounge cư dân và khu thương mại dịch vụ, đáp ứng đầy đủ nhu cầu sinh hoạt, thư giãn và giải trí hằng ngày. Bên cạnh đó, thiết kế căn hộ chú trọng ánh sáng tự nhiên với ban công rộng và hệ cửa kính lớn, giúp không gian sống thông thoáng và gần gũi thiên nhiên.

Ngoài yếu tố tiện ích, cộng đồng cư dân tại Metropole cũng là một điểm cộng lớn. Với định vị phân khúc luxury, dự án thu hút nhóm cư dân có mức sống cao như doanh nhân, chuyên gia nước ngoài và những người làm việc tại trung tâm tài chính. Điều này góp phần hình thành một môi trường sống văn minh, an ninh và riêng tư - yếu tố quan trọng đối với những khách hàng tìm kiếm nơi an cư lâu dài ngay gần trung tâm TP.HCM.
Jessi Luu.